中古一戸建て 八戸市大字河原木字小田上
所在地
八戸市大字河原木字小田上
600万円
34.31坪
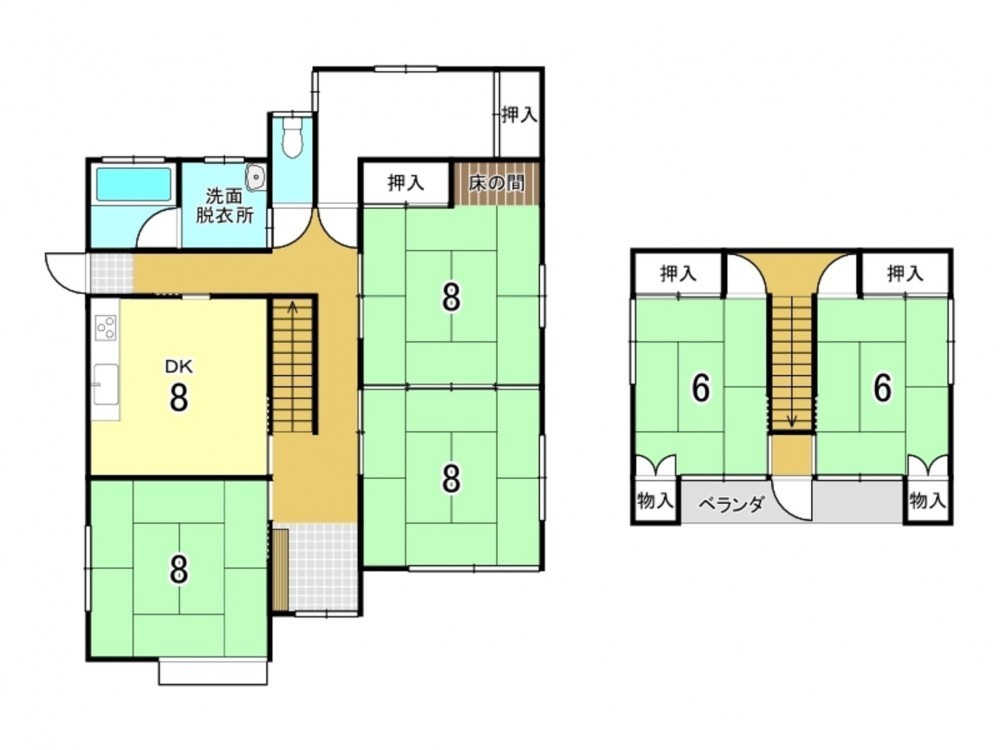
5DK
1階の和室は全室8畳!大人数が集る際に便利な続き間です♪
・海上前ちびっこ公園 徒歩5分(400m)
・セブン-イレブン 八戸小田店 徒歩10分(800m)
・認定こども園高館幼稚園 徒歩12分(950m)
・薬王堂 八戸河原木店 徒歩13分(1000m)
・マエダストア 日計店 徒歩15分(1200m)
・下長内科クリニック 徒歩16分(1300m)
月々の
支払例
支払例
万円
年
%
円
※青森みちのく銀行/借入金600万円、返済期間35年、金利1.200%変動金利)の場合
※審査により金利は変わる可能性があります。
物件概要
- 交通
-
バス停八戸基地バス
- 接道状況
- 土地面積
- 公簿 247.74㎡ (74.94坪)
- 建物面積
- 113.44㎡ (34.31坪)
- 築年数
-
1978年
(昭和53)
5月
築47年 - 建ぺい率
- 60%
- 容積率
- 200%
- 土地権利
- 所有権
- 構造および階数
- 木造 地上2階建
- 小学校区
- 高館 ( 450m )
- 中学校区
- 下長 ( 2120m )
- 私道負担
- 地目
- 現況
- 空
- 引渡時期
- 相談
- 駐車場
- 有 2台
- 上水道
- 公共
- 下水道
- 汲み取り
- ガス
- 都市計画
- 市街化区域
- 用途地域
- 1種住居
- 設備・条件
- シャンプードレッサー、駐車場2台分
- 備考
-
※現況渡し
※現況と異なる場合には現況を優先します。 - 取引態様
- 仲介

